一直以来中国乃至东方设计界(除日本外)
长期处于西方设计的追随、借鉴、模仿当中
室内设计方面亦是如此
国际顶级酒店设计界基本被国外公司垄断
但随着中国改革开放,综合国力的提升
民族意识及自我认同感的觉醒
一批优秀的设计公司脱颖而出
其中最为引人注目的CCD—
香港郑中设计事务(Cheng Chung Design)
在全球权威媒体美国《Interior Design》
重磅揭晓“2022 Top 10 Hospitality排行榜"
CCD位列全球第一

多年來
CCD努力不懈地將東方設計帶入全球視野
以東意西境的設計理念躋身國際
做设计最关键的是思维和理念
如果能找到一些跟自己思路相近的名师作品剖析学习大师的设计方法、思路、理念那么,你也能快速的找到设计灵感所以说又到了搜集PPT的时刻了~《 2024年最新CCD方案PPT特辑124套》
- P P T 方 案 可 编 辑 -
PPT方案合辑有点:
均为近几年整理的PPT方案(部分可编辑)
包括酒店 样板间 办公 会所 商业 售楼处
别墅 豪宅 软装方案 公寓等
全部共计:124套 大小:17.4GB
----------------------------------部 分 鉴 赏 请 看
/
01
/
02
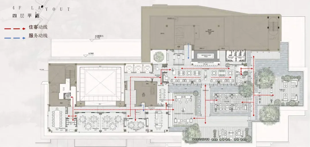
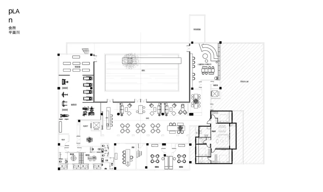
杭州顶级豪宅:海威·安铂中心入户大堂+会所+售楼处丨PPT软装方案185页/
03
/
04
中天国际金融创新中心顶级办公会所丨PPT软装方案45页/
05
/
06